Beschrijving
Ruime winkel met mogelijkheid tot uitbreiding naar Horeca D2 op drukke plek midden in de populaire winkel- en horecastraat in Utrecht Centrum.
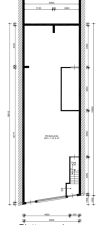
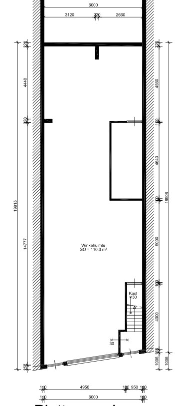
Dit winkelpand is een ware eyecatcher aan het begin van de Voorstraat. Direct gelegen tegenover de Albert Heyn en schuin tegenover de Etos. De Voorstraat biedt een unieke mix aan retail, horeca en publieksgerichte dienstverlening en verbindt het Centrum met Utrecht Oost. Totale oppervlakte is circa 110 m2 BVO geheel op de begane grond .
-Huurprijs: EUR 43.000.- per jaar te vermeerderen met BTW
-Oppervlakte: 110m2 BVO
-Bestemming: Gemengd 1; detailhandel, publieksgerichte dienstverlening, ateliers en praktijkruimtes
-Ingangsdatum: per 1 april 2026
-Bankgarantie: 3 maanden huur te vermeerderen met BTW
-Huurtermijn: 5 + 5 jaren
-Huurbetaling: per maand vooruit
-Oplevering: het object wordt casco verhuurd, echter opgeleverd in huidige staat, leeg en bezemschoon
Ligging en Bereikbaarheid:
De Voorstraat ligt in het historische hart van Utrecht, op steenworp afstand van het Neude, de Oudegracht en het Janskerkhof. Qua bereikbaarheid scoort de Voorstraat hoog. Diverse buslijnen stoppen op minder dan 500 meter afstand en Utrecht Centraal ligt op circa 10 minuten loopafstand. De straat is goed bereikbaar met de auto vanaf de A27 en A28 via de Biltstraat. Parkeergarages zoals Grifthoek en Paardenveld bevinden zich op loopafstand. Dankzij de ligging in een fiets- en voetgangersvriendelijke zone is de Voorstraat uitstekend bereikbaar voor het dagelijkse winkelpubliek. Er zijn volop fietsenstallingen in de directe omgeving.
Omgeving
De Voorstraat is een van de meest karaktervolle winkelstraten van Utrecht. Strategisch gelegen tussen het bruisende Neude en de levendige Biltstraat, vormt deze straat een belangrijke schakel in het winkel- en horecagebied van de binnenstad. Wat de Voorstraat zo aantrekkelijk maakt voor retailers, is de diverse en dynamische mix van ondernemers. Van hippe modeboetieks en duurzame vintagewinkels tot speciaalzaken en vernieuwende horeca – de straat trekt een breed publiek van studenten, young professionals, dagjesmensen en buurtbewoners. Deze levendige mix zorgt voor een constante stroom aan passanten en een inspirerende ondernemersomgeving.
Huurovereenkomst:
De op te stellen huurovereenkomst is conform de overeenkomst die door de Raad voor Onroerende Zaken in 2012 is vastgesteld, met aanvullende bepalingen verhuurder.
Bezichtigingen:
U kunt contact opnemen met JB Retail. Bezichtigingen zullen ingepland worden op momenten dat dit de huidige winkel zo min mogelijk beïnvloedt.
Disclaimer:
De informatie in deze uitgave is met grote zorg samengesteld, desondanks kunnen er geen rechten worden ontleend. De beelden en sfeerplattegronden dienen slechts ter inspiratie om een indruk te geven van de mogelijkheden. Niets uit deze uitgave mag zonder toestemming van JB Retail worden overgenomen Copyright (2025)
Indeling
De winkel beschikt over een karakteristieke pui met aan de linkerkant de ingang naar de winkel. De winkel heeft een open karakter en heeft aan de achterkant een opslagruimte, pantry en toilet.